Get Started / Arrange a Free Consultation
London’s trusted specialist in planning applications, delivering expert guidance and swift approvals for all types of projects.
Planning Services
SCL Design specialises in providing expert planning application services, guiding clients through the complexities of the UK planning system. Whether you’re seeking permission for residential, commercial, or change of use projects, our team of experienced town planners and architects work closely with local authorities to ensure swift and successful approvals. We take the hassle out of the process by managing every aspect, from initial consultation to the final submission, all within a timely 14-working-day period. Our competitive pricing and comprehensive knowledge of local regulations make us a trusted partner for planning applications in and around London.
Structural Drawings
SCL Design offers high-quality structural drawings tailored to meet your project’s unique needs. Our qualified structural engineers and architects collaborate to produce detailed, regulation-compliant designs that ensure the safety and integrity of your building. From new constructions to extensions and renovations, we deliver precise structural drawings that lay the foundation for a smooth construction process. With our technical expertise and commitment to excellence, we provide clients with peace of mind, knowing that their project is built on a solid and secure design. We have extensive experience working with local authorities across London & beyond.
Our Services
Why Choose Us
Timely Submission
Competitive Pricing
Realistic Advice
Qualified Architects
Expert Town Planners
Personalised Service
Client Feedback
Their stories reflect our commitment to excellence and the positive impact our services have had on their lives.
EXCELLENT Based on 15 reviews Posted on Liza Green30/10/2023Trustindex verifies that the original source of the review is Google. Rauf delivered an Incredible service from beginning to end. He Successfully put my very stressed and overwhelmed mind at ease. The plans drawn were superb, and he guided me through the entire process with ease. All in all an amazing service that I wouldn’t hesitate in using again.Posted on Asif Dawar06/04/2023Trustindex verifies that the original source of the review is Google. Excellent services and very professional. I got a loft conversion and I couldn’t be anymore happier probably the all option out of all others.Posted on nadiyah dadwal06/04/2023Trustindex verifies that the original source of the review is Google. Very professional and helpful 👍🏼😊Posted on Zulfiqar Ahmad05/04/2023Trustindex verifies that the original source of the review is Google. Customer care is exceptional. The company did some extra miles to resolve my issues, even it is not part of their services. I appreciate their advice, cost effective tips, and fulfilling promises.Posted on Samee S14/10/2022Trustindex verifies that the original source of the review is Google. Rauf was truly excellent in understanding our needs and explaining what could and couldn’t be achieved. He balances design with costs and gives advice on multiple solutions. He delivered the work well within the expected time. Thanks again RaufPosted on ravinder kumar09/04/2022Trustindex verifies that the original source of the review is Google. Siddique Consultants is very professional and reliable company in east London. I used them twice so far . I got Siddique number from wisdom construction . And best things about Rauf Siddique . He charge Geneon fee . I am happy to recommend to others and giving 5 STARS*****Posted on BUSHRA ARIF18/02/2020Trustindex verifies that the original source of the review is Google. Very professional people. I got their services for my double storey side extension & loft conversion ,their drawings was up to the mark and on time. every structural element was detailed designed .Mr Rauf is very professional and he knows how to do his job. I must recommend their services to others ,excellent work in reasonable price.Posted on Studio Architekton29/10/2018Trustindex verifies that the original source of the review is Google. Excellent service . Very friendly and helpful .
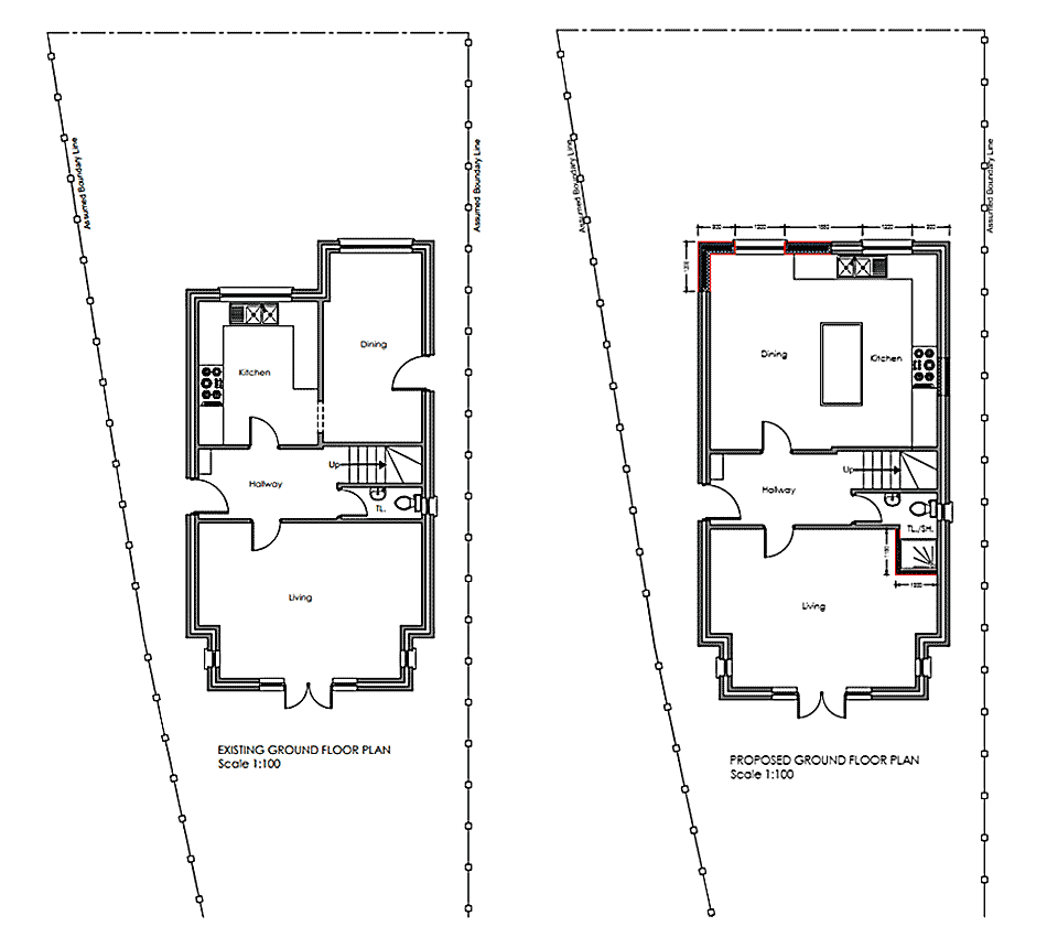
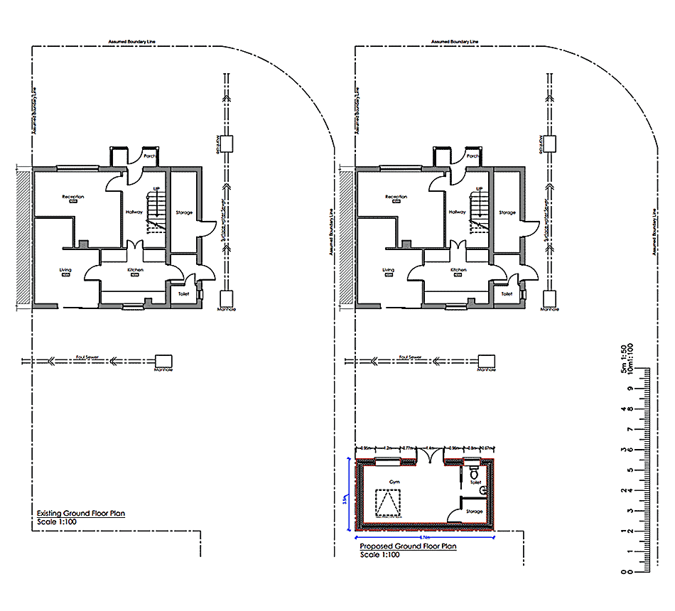
Our Works
Here are some of our works showing a diverse range of innovative architectural designs and expertly crafted structural drawings that showcase our commitment to quality and functionality.
Ready To Start?
Visit Us
Visit our design studio, where we can review your proposal in detail and provide free advice. We’ll share valuable insights on planning loopholes and construction design methods, offering expert knowledge to guide you through every aspect of your project.
